우리가족이 살 집을 짓기로하고 어떤 구조의 어떤 자재로 집을 짓는 것이 좋을지 공부를 하게 되었다. 초기단계에서는 편리한 구조와 디자인이 이쁜 것을 우선으로 꼽았지만 공부를 해 갈수록, 그리고 조금 시간이 지나 설계 단계에 접어들어서는 겨울에 따뜻하고 여름에 시원한 집, 단열과 기밀의 중요성, 하자가 덜 발생할 수 있는 구조 등 튼튼하고 따뜻한 집에 대한 방향으로 공부를 하게 되었다. 집을 짓는 자재와 공법에는 너무도 많은 것이 있기에 일반인인 필자가 아무리 공부한다고 하더라도 다 이해하는 것은 어려웠고 불가능했다. 그리하여 집에 대한 방대한 정보중에 우리 집에 필요한 정보를 추려 알아보고 공부하였으며 그러던 중 단열과 열효율에 매우 특화된 패시브하우스라는 것을 알게 되었고 우리집도 그렇게 지으면 좋겠다는 생각에 이르게 되었다. 먼저 패시브하우스란 첨단 단열공법으로 주택의 에너지 낭비를 최소화한 건축물을 일컽는 말로 독일에서 시작하여 유럽에서 빠르게 확산되어 우리나라게까지 넘어오게 된 공법이다. 우리나라에는 패시브하우스라는 개념과 공법이 알려진지 얼마되지 않았기에 아직 한국 기후와 라이프스타일에 맞는 공법과 규정이 정확히 마련되진 않았다.

이러한 고효율의 에너지절약설계기법을 적용한 패시브건축물을 일반 대중에게 교육하고 보급하기 위해 건축 전문사회단체인 한국패시브건축협회가 있는데 필자는 이 협회에서 운영하고 있는 사이트에서 많은 정보를 얻었고 우리집을 설계하고 시공하는데 조금이라도 반영 하려고 노력했다. 주택과 건축물에의 단열과 열효율에 관련한 정보를 얻고자 한다면 아래 한국패시브건축협회에 방문해 보길 추천한다.
(사)한국패시브건축협회 (Passive House Institute Korea) (phiko.kr)
(사)한국패시브건축협회 (Passive House Institute Korea)
(사)한국패시브건축협회 (Passive House Institute Korea)
www.phiko.kr
한국패시브건축협회 사이트를 들락거리며 어떻게 해야 겨울에 따뜻하고 여름에 시원한 집을 지을 수 있을지 많은 공부와 고민을 해보았다. 그리하여 지금 진행하고 있는 설계사무소에 패시브하우스 정도는 아니더라도 단열을 보강하고 열교환장치를 설치하고자 문의 했더니 단열은 등급을 올려서 강화할 수 있지만 열교환장치는 설계에 반영해 본적이 없다고 하여 시공 단계에서 열교환장치 업체와 현장에서 설치를 해야한다고 한다.
| 열교환장치란? - 실내의 냉난방열을 유지하며 환기를 시켜주는 장치 |
열교환장치는 크기가 커서 설치할 공간도 마련해야하고 공기가 드나드는 배관도 뚫어두어야 했기에 설계할때부터 반영을 해 두어야 할 것 같았다. 그렇다면 지금 진행하고 있는 설계사무소를 변경해야하는데 일이 복잡해 질 것 같다. 우선 한국패시브건축협회에서 회원사를 찾아 그나마 가까웠던 대구에 있는 업체에 문의 해 봤었고 해당 업체에서도 설계부터 시공까지 같이 하고 있는데 설계 단계에서 변경을 한다면 설계변경에 따른 추가비 100만원 정도에 시공에는 3000만원정도가 추가 될 것으로 예상이 되었다. 추가되는 시공비에는 추가 단열재와 패시브공법의 인건비, 열교환장치가 포함된 금액이었다. 3000만원이면 월 25만원씩 10년이면 3000만원이다. 변경하고 싶었지만 시공비가 예산보다 초과될 것이다.

패시브하우스급으로 단열등급을 높게 하여 설계를 하고 좋은 자재를 투입하였다고 하더라도 제대로된 시공이 안된다면 무용지물일 것이다. 그리하여 필자는 단열을 강화하여 추가로 넣되 목조주택을 잘 이해하고, 시공 경험 대비 하자가 적은 시공사를 선정해서 짓는다면 패시브하우스 정도는 아니더라도 하자 없이 따뜻하고 시원한 집을 지을 수 있지 않을까 판단하였다.





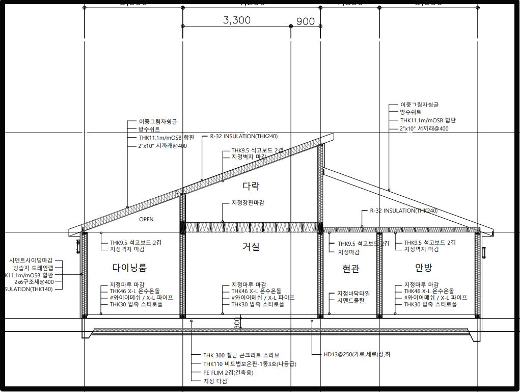
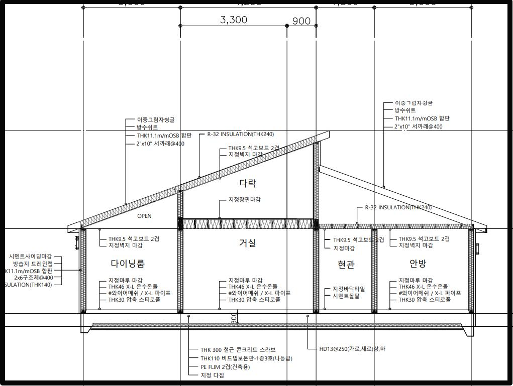
처음 계획되었던 단열은 아래와 같다.
바닥단열: PE FLIM 2겹 + THK110 비드법보온판 1종3호(나등급) + THK 철근 콘크리트 슬라브 + THK30 압출 스티로폴
벽체(외벽): R-21 INSULATION(THK140단열재)-나등급
지붕(옥상): R-32 INSULATION(THK240단열재)-나등급
필자가 집을 짓는 곳은 남부지방이다. 위 단열기준으로 벽체의 열관류율은 140(두께)/0.036(열전도율) = 0.257 Wm2K 가 나온다. 법상 남부지방의 단열기준은(0.320)으로 이하 이면 단열기준에 충족 되므로 위 계산에서 나온 0.257 Wm2K 적합한 것으로 나온다. 지붕은 법상 (0.180)이하로 계획에 적용된 것은 (0.158)으로 적합하다.

여기서 바닥은 그대로 두고 벽체 R-21 INSULATION(THK140단열재)-나등급 -> R-23 INSULATION(THK140단열재)-가등급 // 지붕(옥상): R-32 INSULATION(THK240단열재)-나등급 -> R-37 INSULATION(THK240단열재)-가등급으로 강화하였다.


설계사무소와 얘기해보니 남부지방에서는 나등급의 정도로만 단열이 들어가도 충분한것으로 계산된다고 했지만 단열재를 한등급 올려서 좀더 다단히 단열이 되도록 변경하였다. 열교환장치를 넣지 못 한것이 못내 아쉽지만 이정도 단열을 넣고 제대로 시공만 된다면 난방비를 많이 들이지 않고 따뜻한 겨울을 보낼 수 있지 않을까 하는 생각이 든다.
'전원주택짓기-인테리어' 카테고리의 다른 글
| 목조주택 외벽마감재(외장재) 스타코에서 세라믹사이딩으로 변경한 이유 [세라믹사이딩 비용/장단점/시공시 추가해둘것] (0) | 2021.06.16 |
|---|---|
| [전원주택 짓기] 우리가족 집 짓기 step 5. 시공사 선정 (현재의 시공사를 선택한 과정과 이유) (0) | 2021.06.02 |
| 집 짓는 도중 건축주 변경하기 (ft. 건축주 변경 비용/시기/ 필요서류) (0) | 2021.05.03 |
| [전원주택 짓기] 건물 신축시 착공 전 미리 상수도 급수공사 시행 신청해두기 (ft. 급수공사 시행신청 필요서류 / 소요기간 / 금액) (0) | 2021.04.20 |
| [전원주택 짓기] 우리가족 집 짓기 step 4.설계 (집 설계전에 알아두면 좋은 것들) (0) | 2021.04.08 |
댓글